Topo-Immo biedt u deze nieuwbouwwoning, gelegen op een strategische locatie, ideaal voor woon-werkverkeer dankzij de nabijheid van de verbindingsweg Ninove-Brussel.

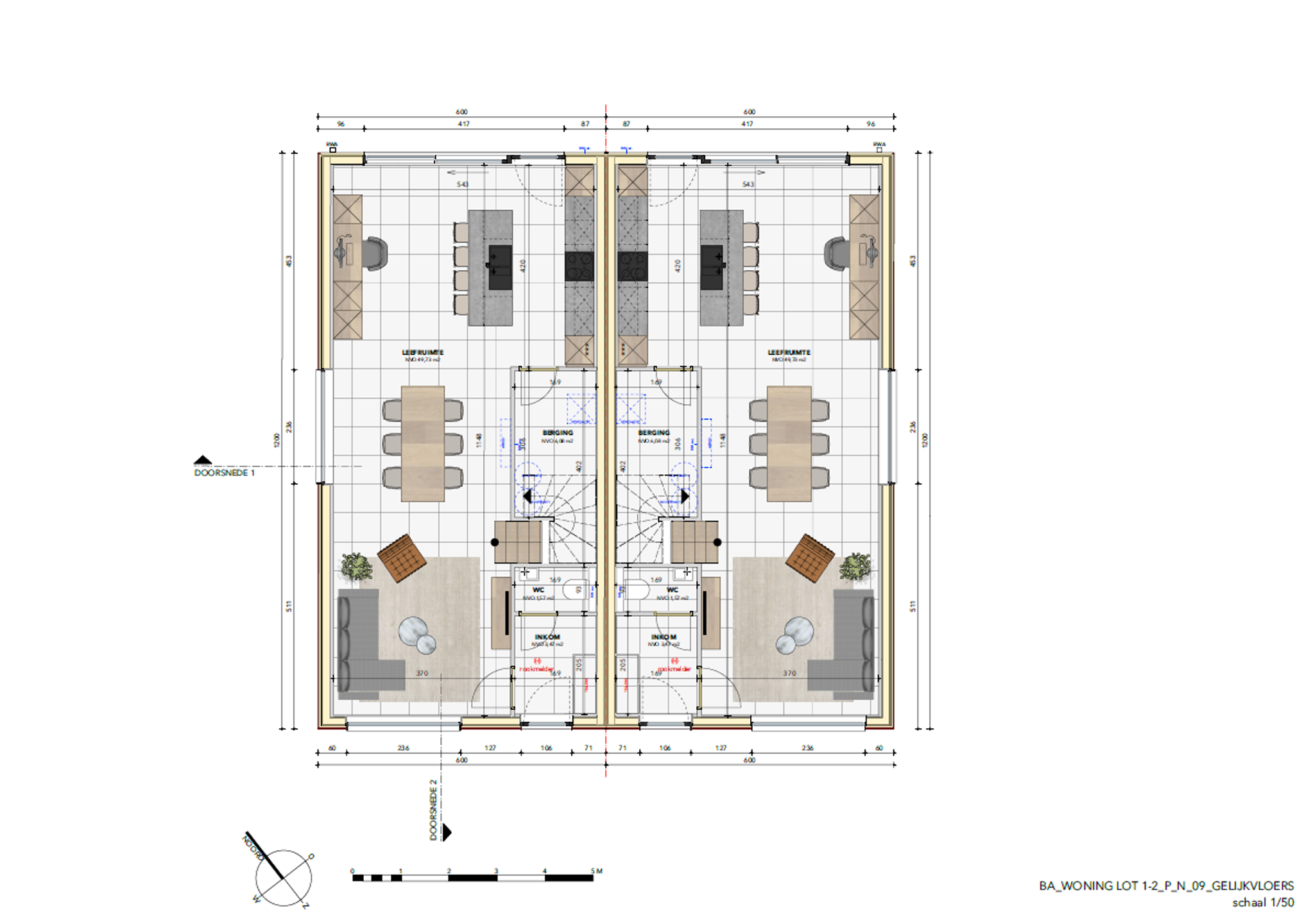
Het gelijkvloers omvat een inkomhal met gastentoilet, een woonkamer en de uitgeruste designkeuken inclusief keukeneiland en Miele-toestellen. Aansluitend vinden we een handige bergruimte.

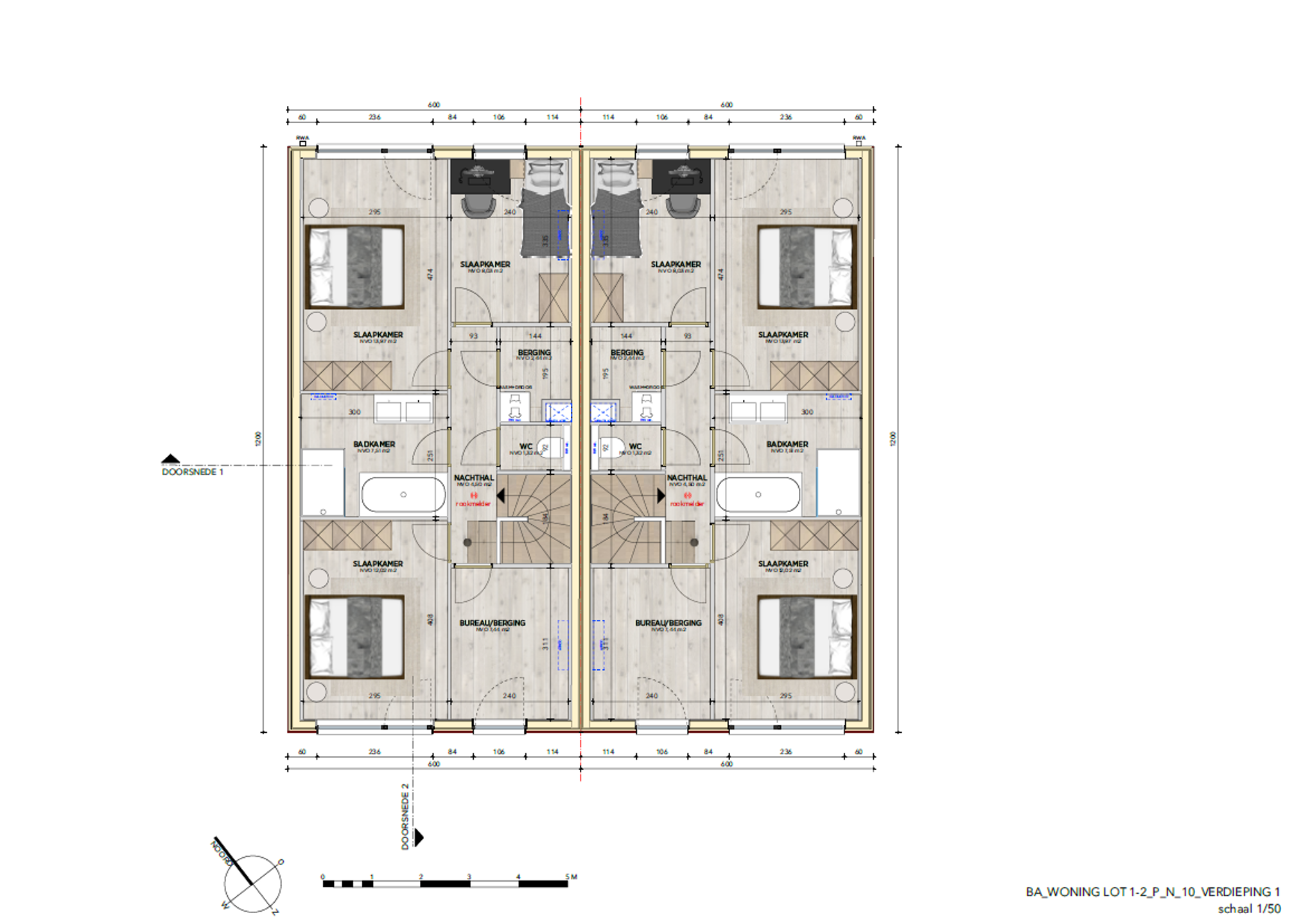
Het verdiep omvat 3 slaapkamers, een bureauruimte, een wasplaats/bergruimte, een apart toilet en een badkamer met douche en ligbad.

Verwarmen gebeurt met lucht-lucht warmtepomp, sanitair warm water via warmtepompboiler. 14 zonnepanelen aanwezig + thuisbatterij. Ventilatiesysteem type D+.

*Prijs vermeld in de advertentie betreft prijs excl. BTW en kosten

da85c5db2e954c0b85f671697660ebf9.png ae2f7d948aa643018b66a6c42218a32f.png 3ffa89d711ee46e28a9a458c465babe2.png 98bd5fe1aafa430491961c4eaa95a361.png 332ae777fdc34ff08ab2c5c634aa337d.png 94d7d66550f441a89852a67b0dfb0618.png 8d7446e57a324960900f4fb631adf347.png 40465558666a4d33a9ba19124a921edf.png 9aadfe9c88dc4b258c55c8765f7cce93.png

Heb je interesse in deze woning?

Neem contact met ons op voor een bezichtiging of meer informatie.