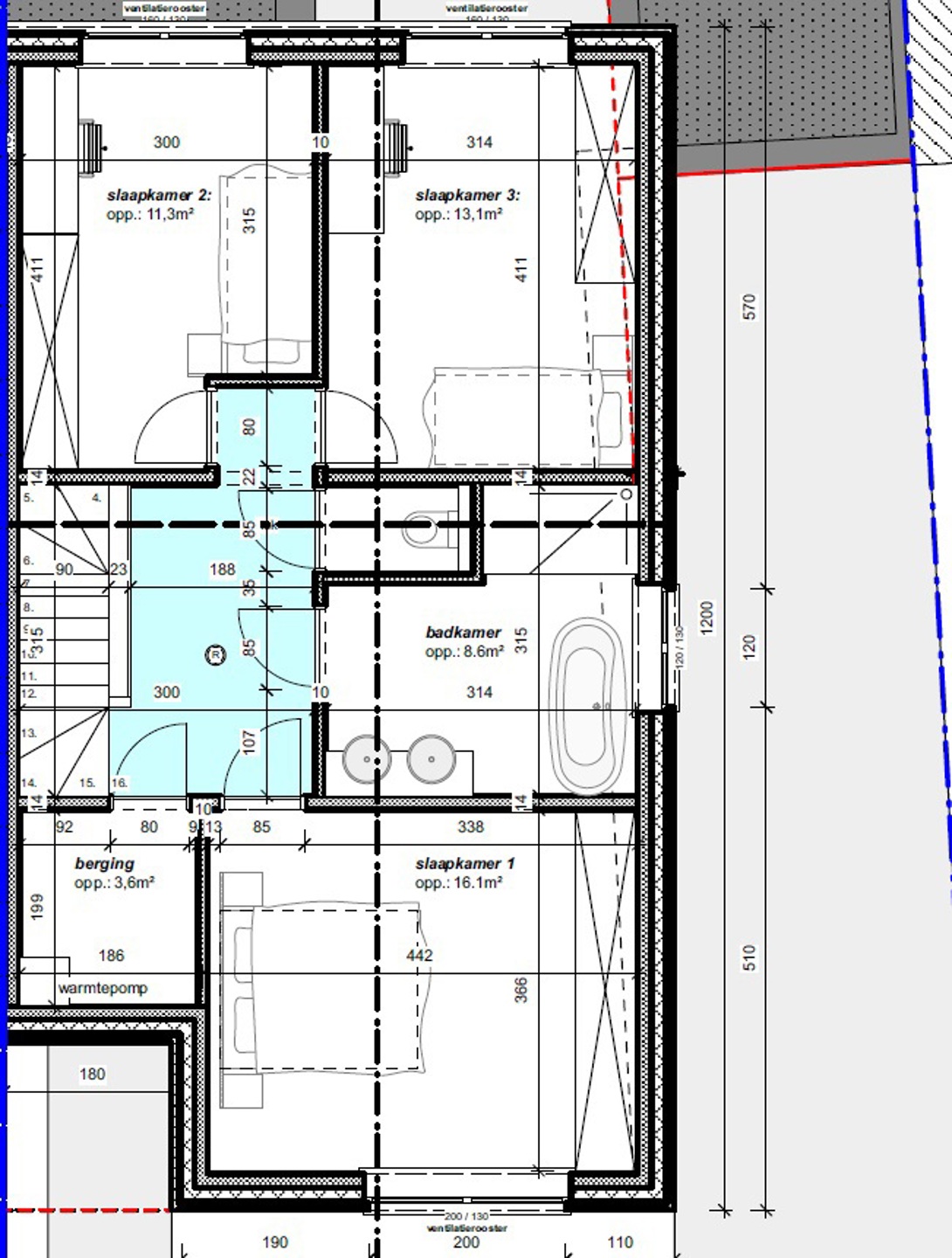
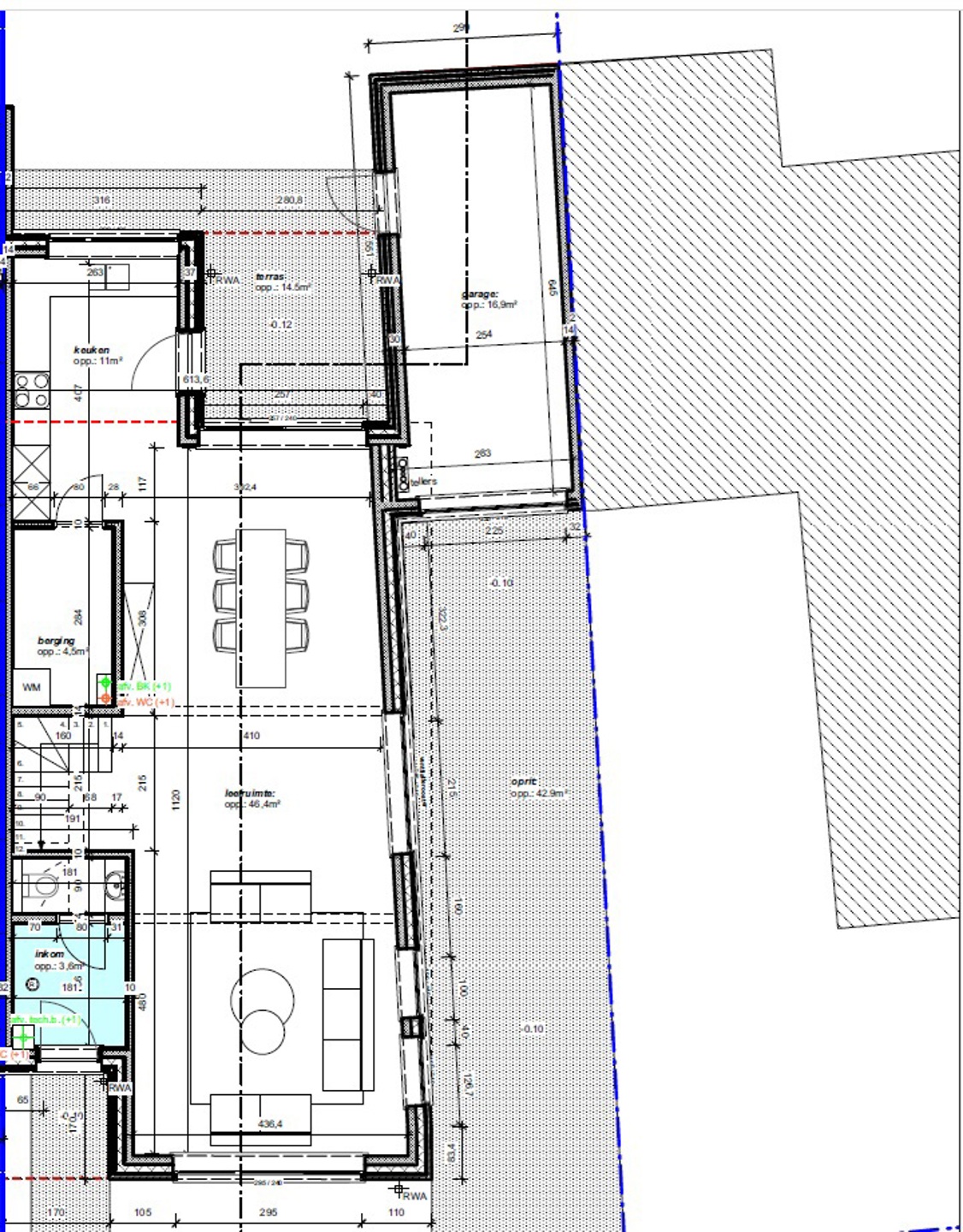
Op een ideale locatie in Liedekerke nabij het station bevindt zich deze prachtige nieuwbouwwoning met een tijdloze architectuur. De woning omvat een inkomhal, een gastentoilet, een ruime en lichtrijke eet- en leefruimte met open keuken en aanpalende berging. Via de grote glaspartijen bereikt men het aangelegd terras (+/- 15 m²) en de aangelegde en afgesloten tuin. De woning is op het gelijkvloers ook voorzien van een garage. Op de eerste verdieping beschikt men over een nachthal, drie ruime slaapkamers, een badkamer (voorzien van bad, douche en dubbele lavabo) en een berging. De tweede verdieping bereikt men met een vaste trap, deze ruimte kan optioneel worden afgewerkt naar een vierde slaapkamer. De oplevering van de woning zou voorzien zijn voor eind 2025. Vloerverwarming met warmtepompE-peil onder 20 – Rustige ligging.

*Prijs vermeld in de advertentie betreft prijs excl. BTW en kosten

3854e89d4e71420782e9284448124e9d.jpg 16065ba70ec24a289697a4f0f9c042ac.jpg 7ea53a7f9c46497897b1144daa2d45d3.jpg b65194b292974ca2b1e3219b6e9c9b57.jpg 82d896d1aee046d29c9c97145d801539.jpg 6aed6ee44a3845f8be38ed20c1c5fe11.jpg 0dfd63f5d10e4f22a42cc3a3ec1e533b.jpg f8569b296ec2437ea4ced7b3f32f5fca.jpg 40f206121a7a4b5e87a101427c8b0131.png

Heb je interesse in deze woning?

Neem contact met ons op voor een bezichtiging of meer informatie.